?!DOCTYPE html PUBLIC "-//W3C//DTD XHTML 1.0 Transitional//EN" "http://www.w3.org/TR/xhtml1/DTD/xhtml1-transitional.dtd">
|型通气性能可分为四点:
1、将排水道内的有毒有害气体排放出去Q以满卫生要求Q?/p>
2、通气向蓄水池、水及排水道内补充新鲜空气,以减轻金属管的腐蚀Qg长用寿命;
3、蓄水池、水应讄两根以上的通气以提高排水pȝ的能力,QD一个小例子Q打Ҏ的时候,瓶口朝下液体要流出,必须插一栚w气,一端通大气,一端通液面与瓶底之间的空隙,防止道内Ş成负压,保证排水通畅Q防止死水Ş成,串味Q减L压L动幅度,保护水封Q防止水破坏?/p>
4、能快速地蓄水池及水内的水蒸气及有x体排出,内置U布Uq能有效的L防止病媒、昆虫和埃q入以破坏水质?/p>

|型通气的规格Q?/strong>
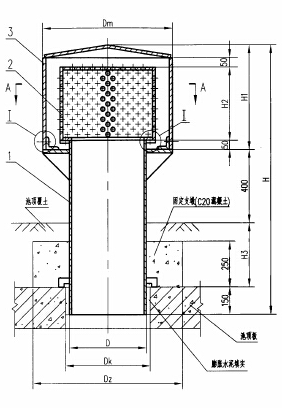
型号Q Z-200、Z-300、Z-400、Z-600
高度QH3=0 、H3=500、H3=1000
Z-200、H3=0高度890 、H3=500高度1380、H3=1000高度1890
Z-300、H3=0高度1000 、H3=500高度1500、H3=1000高度2000
Z-400、H3=0高度1120 、H3=500高度1620、H3=1000高度2120
Z-600、H3=0高度1450 、H3=500高度1950、H3=1000高度2450
|型通气用说明:
1、通气设计气体流速ؓ5m/sQ过滤(|、布Q层气体q_速ؓ0.75m/sQo|布安装时应采用同等材料q行~合Q内|可用无毒非金属材料制作Q?nbsp;
2、通气按覆土层厚度(H3Q?.0m?.5m?.0m三种设计Q?.0m适用于南方地区,0.5m适用于中部地区,1.0适用于寒冷地区?nbsp;
3、焊接后的除锈、防腐要求根据客戯计要求制作?nbsp;
4、有条g地区通风帽可Ҏ设计要求采用ȝ钢或不锈钢材料制作,以达到更好的防腐qg长用寿命?/p>
|型通气适用于蓄水水池及水箱安装。罩型通气ؓ使排水系l内I气通,压力E_Q防水封破坏而设|的与大气相通的道?/p>
如需最新数据请联系在线客服
沛_良众业有限公司 手机P18638277136 Q?371-64018718 传真Q?nbsp;0371-64018718 邮箱Q?50165323@qq.com 地址Qm义市西村镇西?nbsp; |址Q?a href="http://www.generationapp.cn" target="_self">http://www.generationapp.cn
沛_良众业有限公司
手机P18638277136(销售陈l理)
13849173666(技术部陈工Q?/p>
邮箱Qhnlzpipe@126.com
Q?371-64018718
地址Qm义市西村镇西?/p>
|址Qhttp://www.generationapp.cn
扫二l码联系在线客服沛_良众业有限公司 联系电话Q?8638277136 13849173666 邮箱Qhnlzpipe@126.com 地址Qm义市西村镇西? |址Q?a href="http://www.generationapp.cn" target="_self">http://www.generationapp.cn 备案/许可证号Q?豫ICP?8020186?/a> 技术支持:良众|络?/p>